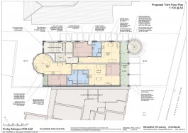
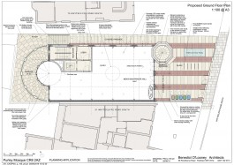
Benedict O'Looney Architects
Works
Practice Profile
Contact
Works
Practice Profile
Contact
Benedict O'Looney Architects